Nano Bas
View Interactive Floor Plan
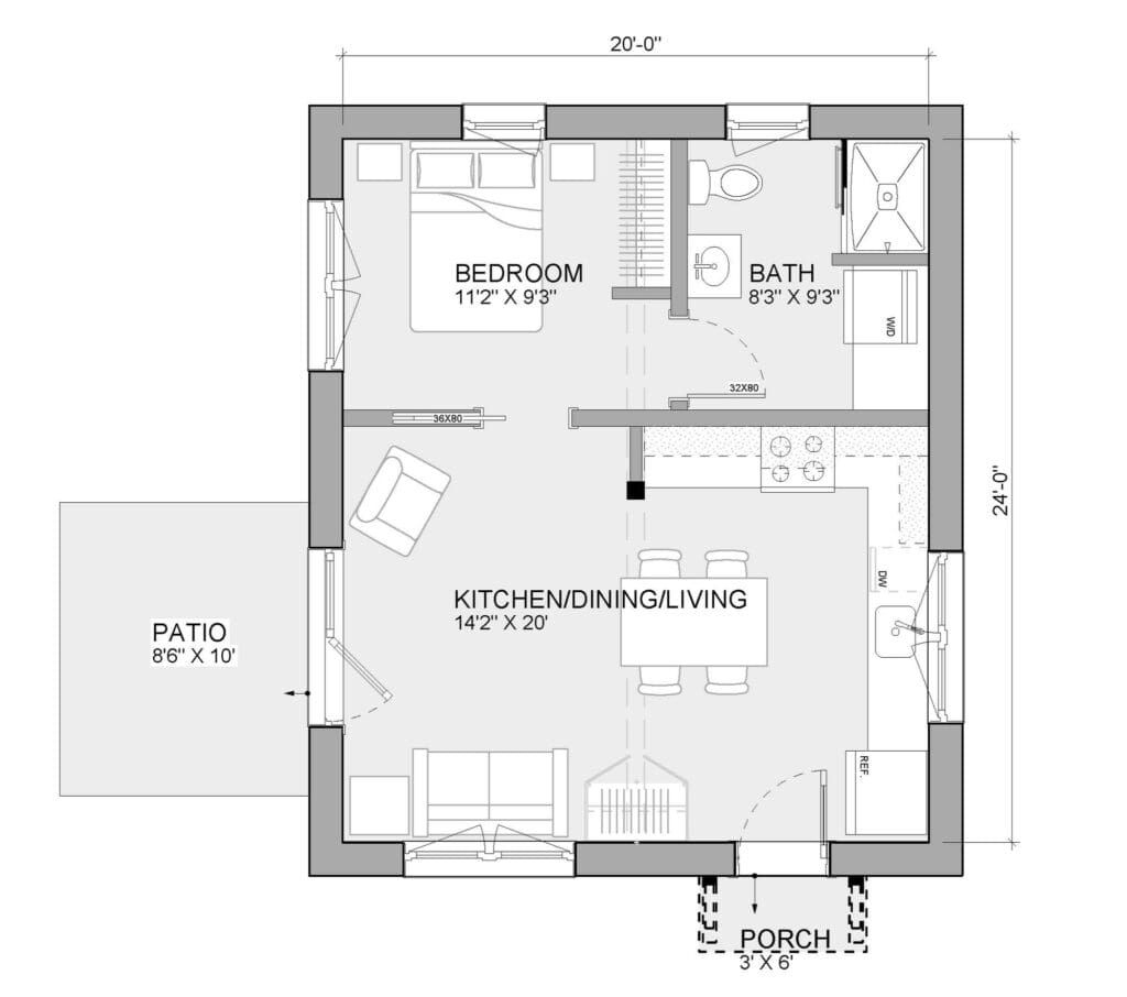
Square Footage
586 Sq. Ft.
Number of Bedrooms
1 Bedrooms
Number of Bathrooms
1 Bathrooms
Finished Cost Range
$355,000 – $410,000*
(Includes the Shell Price Estimate of $125,000)
Flexible Space for the Way You Live
This ready-to-build compact Nano has a mono-pitch roof for a unique, contemporary feel. Enjoy single-level living within its vaulted open kitchen, dining, and living area. The primary bedroom has a roomy closet and sits adjacent to the primary bathroom with a built-in laundry nook. Off the living room is access to the outdoor patio space for relaxing and gathering with friends.

Explore the Layout
Get a closer look at how Nano Bas spaces connect and flow.

“The Nano is great. Everyone who visits loves it—especially friends my age who are looking to downsize. It’s the perfect fit for me: easy to take care of and thoughtfully designed. I’ve hosted many guests who sleep comfortably in the loft, and it’s been flexible enough to accommodate friends with different needs. The loft is cozy, and the whole home just works.”
-Madonna, Unity Home Owner













