Tradd Dela
View Interactive Floor Plan
Square Footage
2785 Sq. Ft.
Number of Bedrooms
3 Bedrooms
Number of Bathrooms
3 Bathrooms
Finished Cost Range
$1,133,000 — $1,412,000
(Includes the Shell Price Estimate of $362,000)
The Tradd Dela: Spacious Comfort, Modern Living
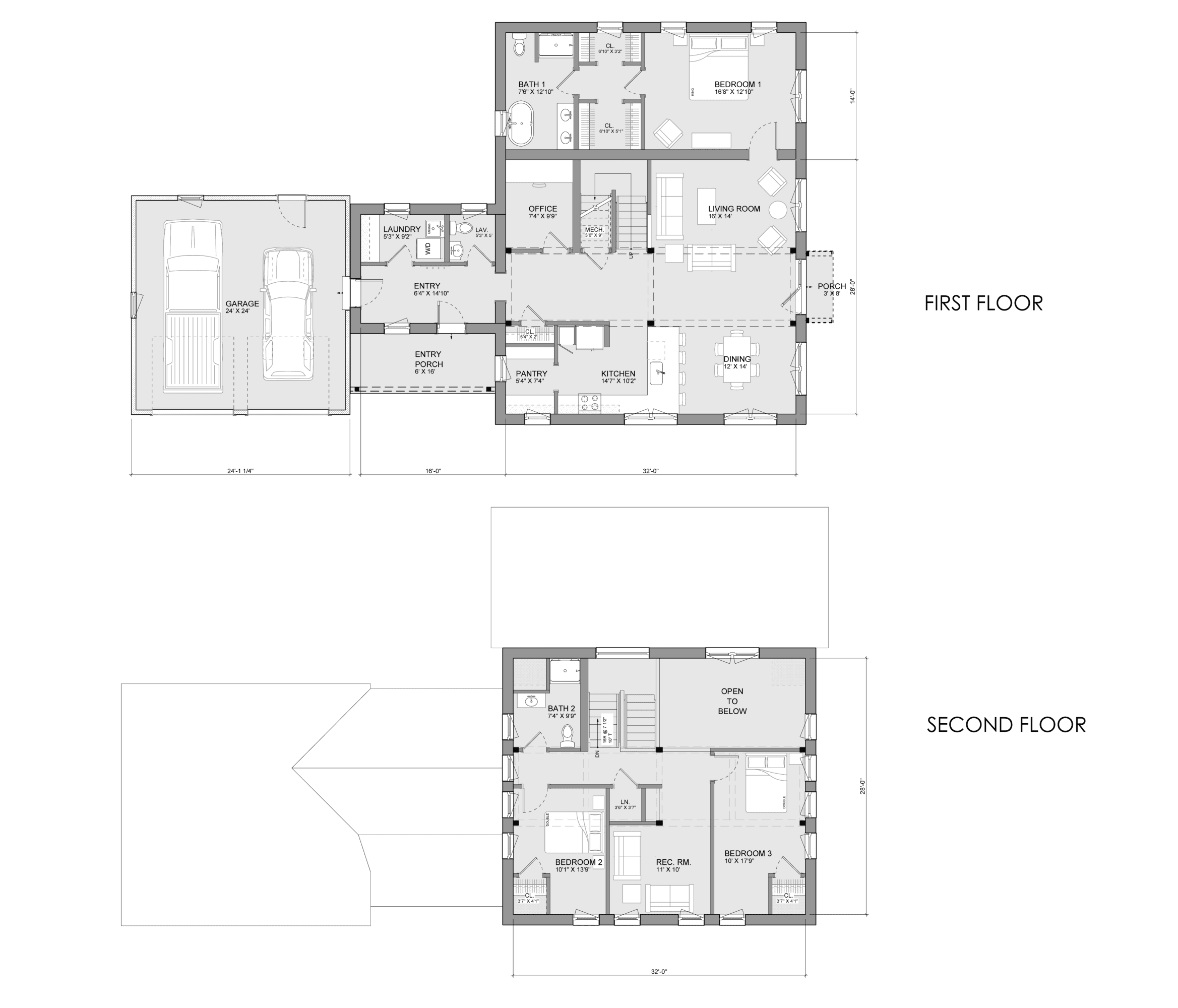
This gable-presenting Tradd has the highest square footage compared with other designs, ideal for families or those who want extra space. The entry porch and connector bridge the garage with the open main floor, containing a first-floor office and laundry area. An open kitchen features a butler’s pantry and informal eat-in counter separate from the formal dining area, a perfect combination for entertaining. For those who prefer single-level living, there is a spacious first-floor primary suite with two extravagant walk-in closets, a changing room, and a sizeable bathroom. Take the switchback staircase to the second floor with dormers, showcasing a unique lookout balcony open below. A recreation room or sitting area is nestled between the secondary bedrooms as a fun hangout space for kids or guests, with an open view to the living room below. The upstairs bedrooms have spacious closets and have multiple windows for a light-filled room.
Unique Benefits
- Exposed Timber Frame
- Extra Addition and Connector
- Private Office
- Butler’s Pantry
- Large First-Floor Primary Suite
- Switchback Staircase
- Lookout Balcony
- Dormers

Explore the Layout
Get a closer look at how Tradd Dela spaces connect and flow.

“We’ve been through many building projects and this was by far the smoothest. We ended up with a great, energy efficient home that was on time and on budget.”
-Cindy, Unity Zum Homeowner







