Xyla Somn
View Interactive Floor Plan
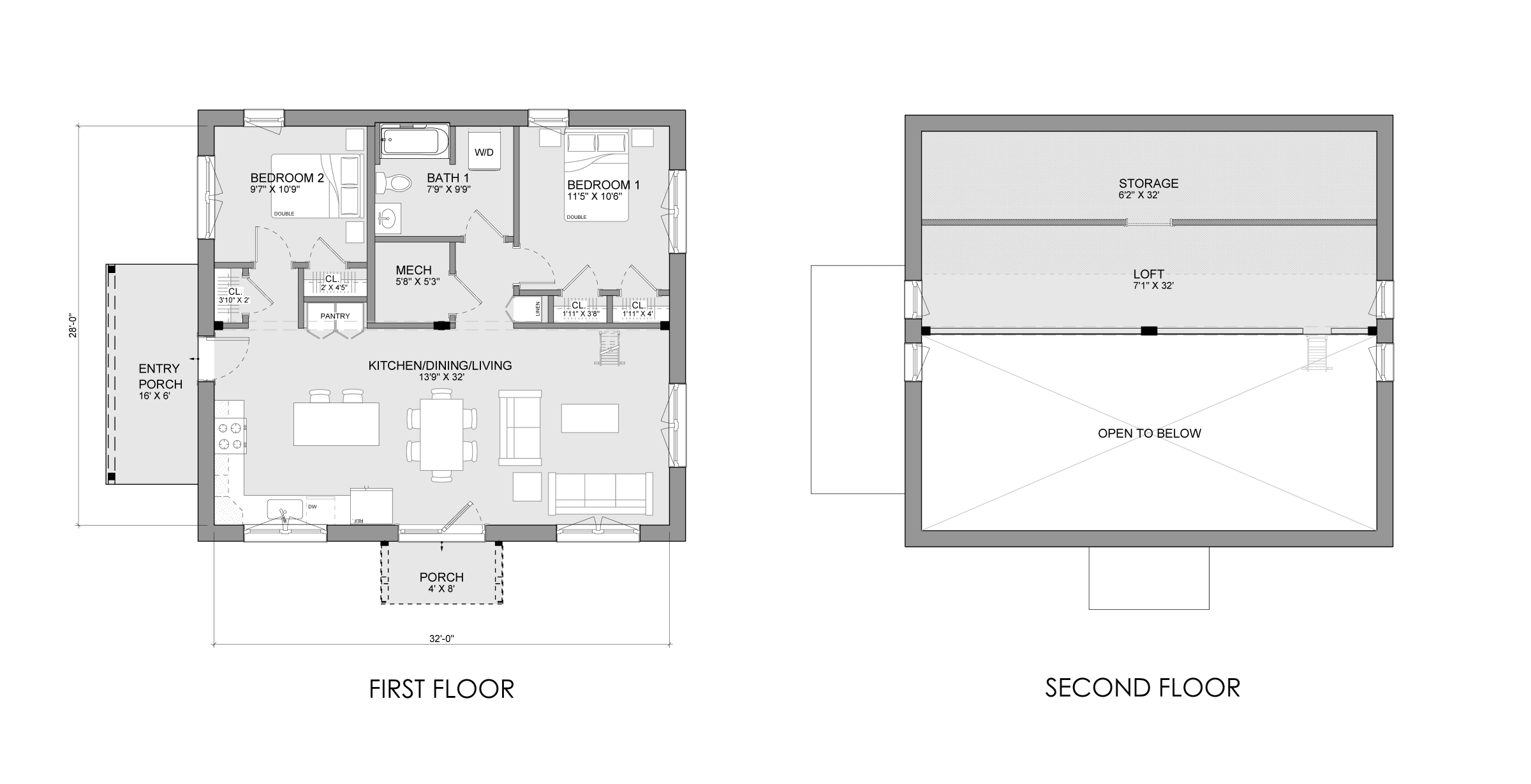
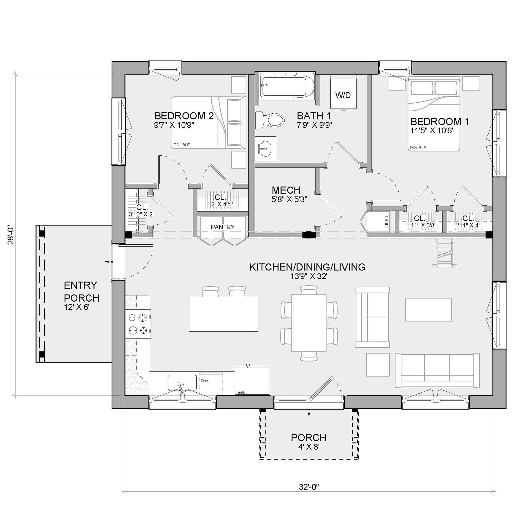
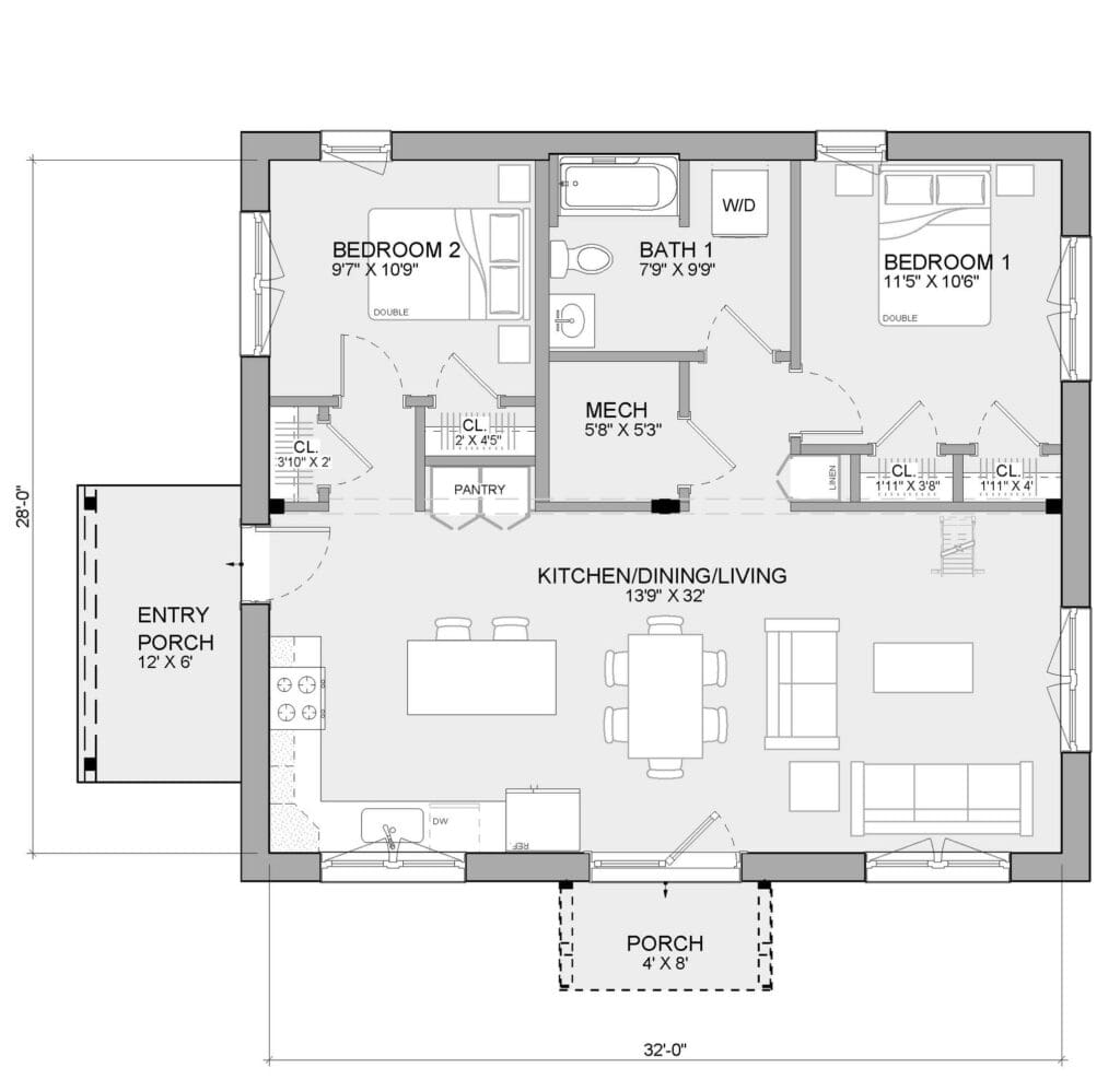
Square Footage
1038 Sq. Ft.
Number of Bedrooms
2 Bedrooms
Number of Bathrooms
1 Bathroom
Finished Cost Range
$353,000 — $457,000
(Includes the Shell Price Estimate of $154,000)
The Xyla Somn: A Compact Home with Big Character
This gable-presenting Xyla has an endearing design well-suited as a starter home or second home. The covered porch and side yard bracketed entry add functional charm to its exterior. With a loft running parallel to the ridge, there is plenty of room for storage or to use as a versatile bonus space. The open kitchen, living, and dining areas have a vaulted ceiling and exposed timbers under a single eave. The primary bedroom has two separate closets, sharing a centralized bathroom and laundry nook with the secondary bedroom.
Unique Benefits
- Single Level
- Loft
- Vaulted Ceilings
- Flexible Bedroom Space
- Exposed Timbers

Explore the Layout
Get a closer look at how Xyla Somn spaces connect and flow.

“We’ve been through many building projects and this was by far the smoothest. We ended up with a great, energy efficient home that was on time and on budget.”
-Cindy, Unity Zum Homeowner








