Zum Dal
View Interactive Floor Plan
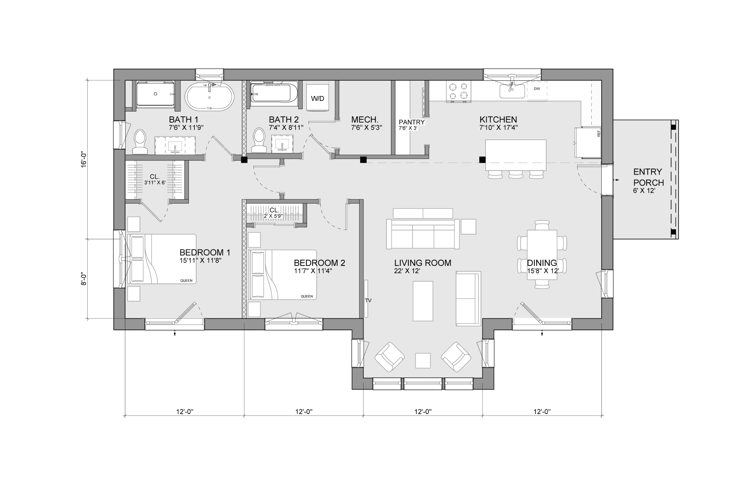
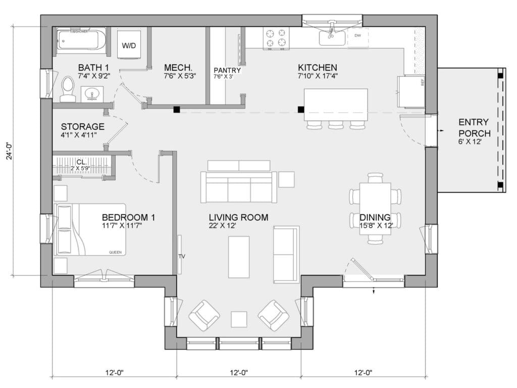
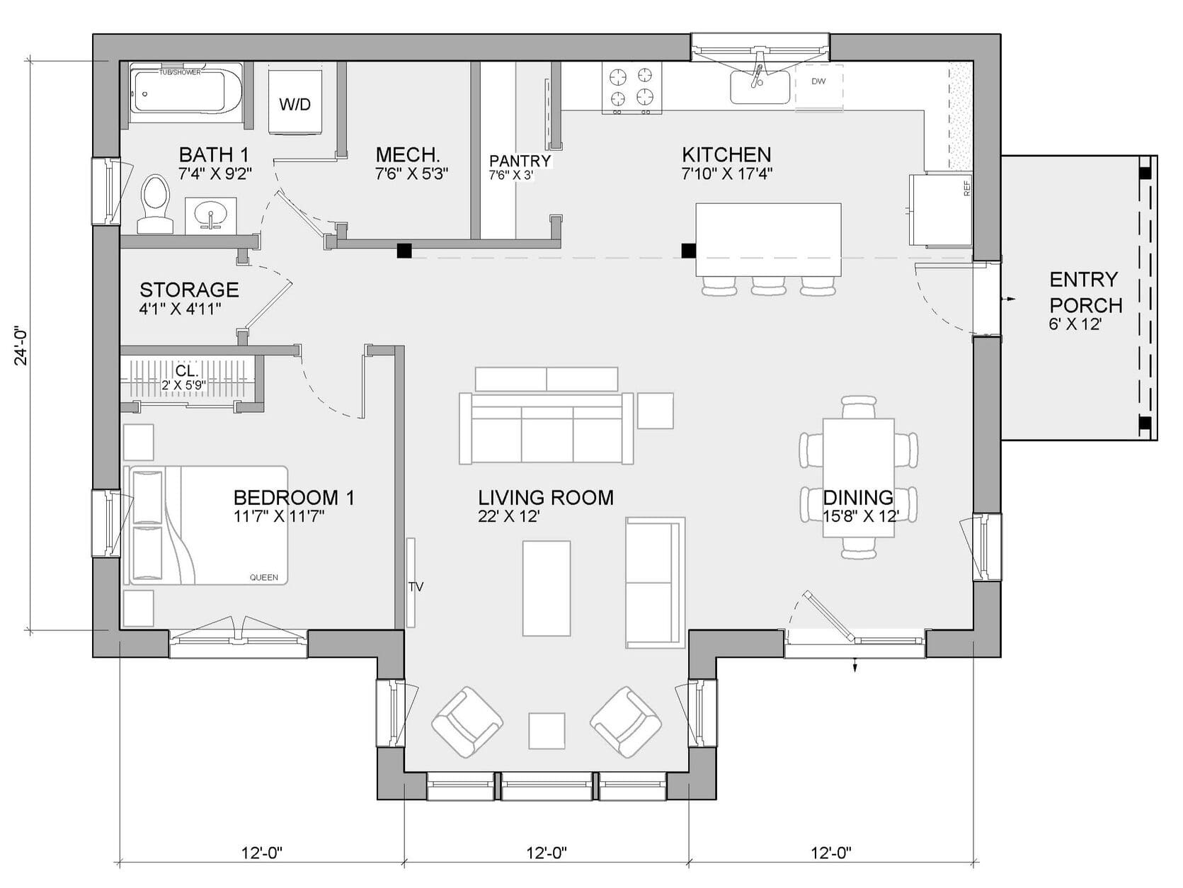
Square Footage
1407 Sq. Ft.
Number of Bedrooms
2 Bedrooms
Number of Bathrooms
2 Bathrooms
Finished Cost Range
$535,000 — $676,000
(Includes the Shell Price Estimate of $191,000)
The Zum Dal: Compact Design, Light-Filled Spaces
This mono-pitch single-level Zum brings together the best aspects of the Zum into one compact footprint. With its entrance adjacent to the side of the home with large transom windows, this design is ideal for land with a view. Enter through the covered porch into the open kitchen, dining, and living room with exposed posts and timbers, 14’ ceilings, and a modern bump out perfect for admiring the outdoors. There are light-filled views in both the public area and in the primary bedroom, a feature unique to the Zum, allowing for maximum intake of natural light throughout the seasons. Conveniently located across from the bedroom is the primary bathroom and laundry area, making chores a breeze.
Unique Benefits
- Single Level
- Mono-Pitch Roof
- Efficient Floor Plan
- Large Transom Windows
- Exposed Posts and Timbers

Explore the Layout
Get a closer look at how Zum Dal spaces connect and flow.

“We’ve been through many building projects and this was by far the smoothest. We ended up with a great, energy efficient home that was on time and on budget.”
-Cindy, Unity Zum Homeowner







