Zum Vallmo
View Interactive Floor Plan
Square Footage
1855 Sq. Ft.
Number of Bedrooms
3 Bedrooms
Number of Bathrooms
2 Bathrooms
Finished Cost Range
$780,000 — $966,000
(Includes the Shell Price Estimate of $286,000)
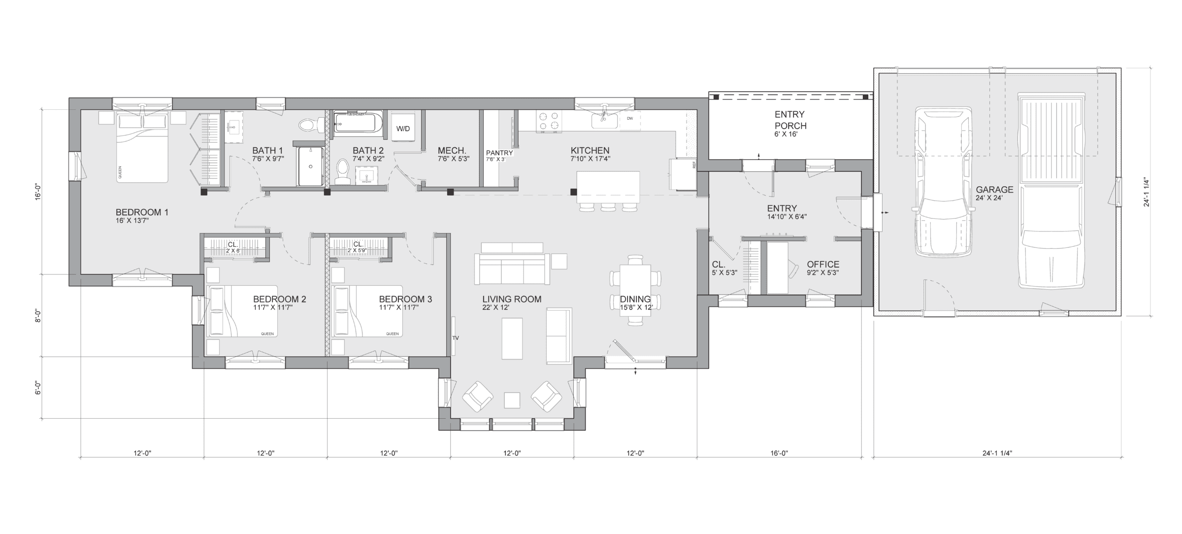
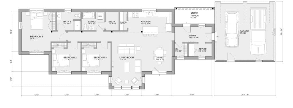
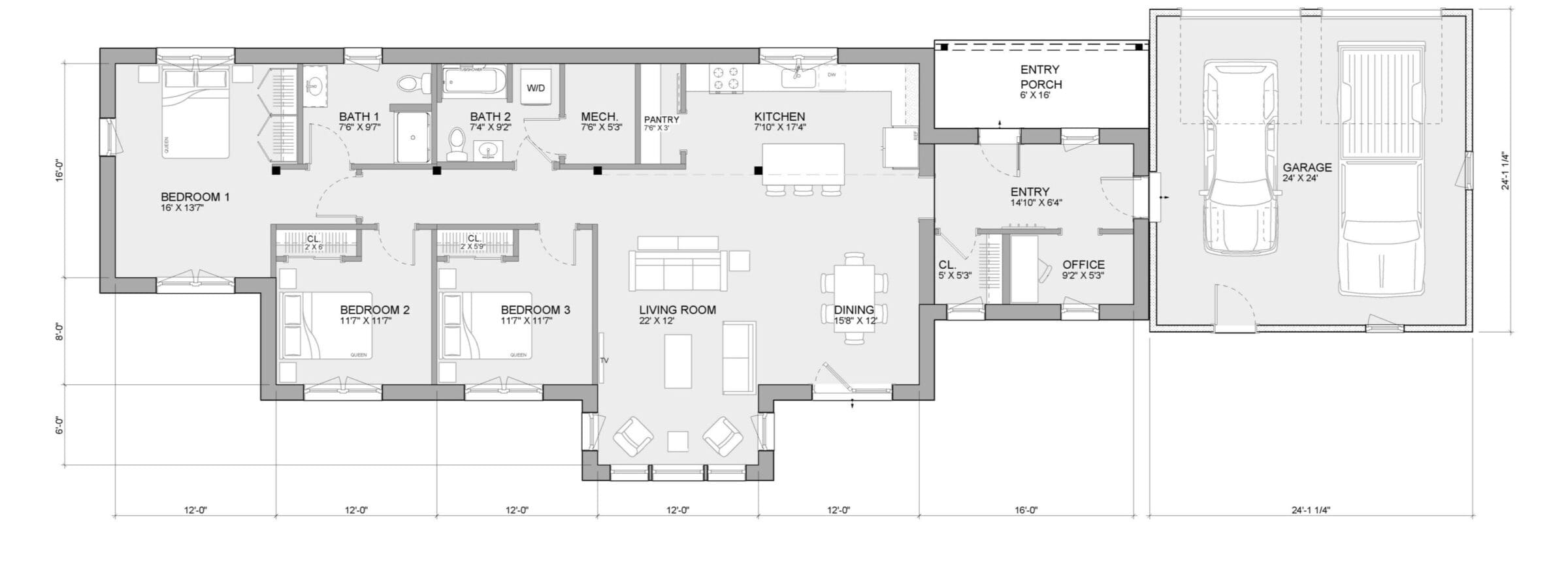
The Zum Vallmo: Balanced Space, Light, and Comfort
This mono-pitch single-level Zum is sprawling and expansive, providing views in all 3 of its bedrooms through large transom windows. Essentially the basic Zum design with an addition and garage on either end, this long design is popular along hillsides or facing mountain views. Enter through the covered porch with a private office and coat closet, connecting the garage to the main volume. The open kitchen, dining, and living room have exposed posts and timbers, 14’ ceilings, and a modern bump-out perfect for a sitting area to admire the outdoors. Next to the kitchen is a walk-in pantry and food prep space, perfect for entertaining family and friends. The secondary bedrooms share a spacious bathroom and laundry area, with the primary bedroom at the end of the hall for added privacy.
Unique Benefits
- Single Level
- Mono-Pitch Roof
- Large Transom Windows
- Extra Addition and Connector
- Private Office
- Exposed Posts and Timbers
- Large Pantry

Explore the Layout
Get a closer look at how Zum Vallmo spaces connect and flow.

“We’ve been through many building projects and this was by far the smoothest. We ended up with a great, energy efficient home that was on time and on budget.”
-Cindy, Unity Zum Homeowner








