Värm Eda
View Interactive Floor Plan
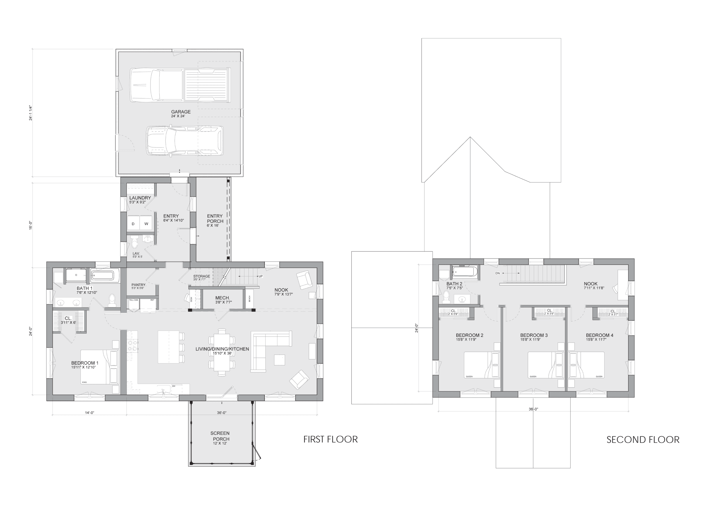
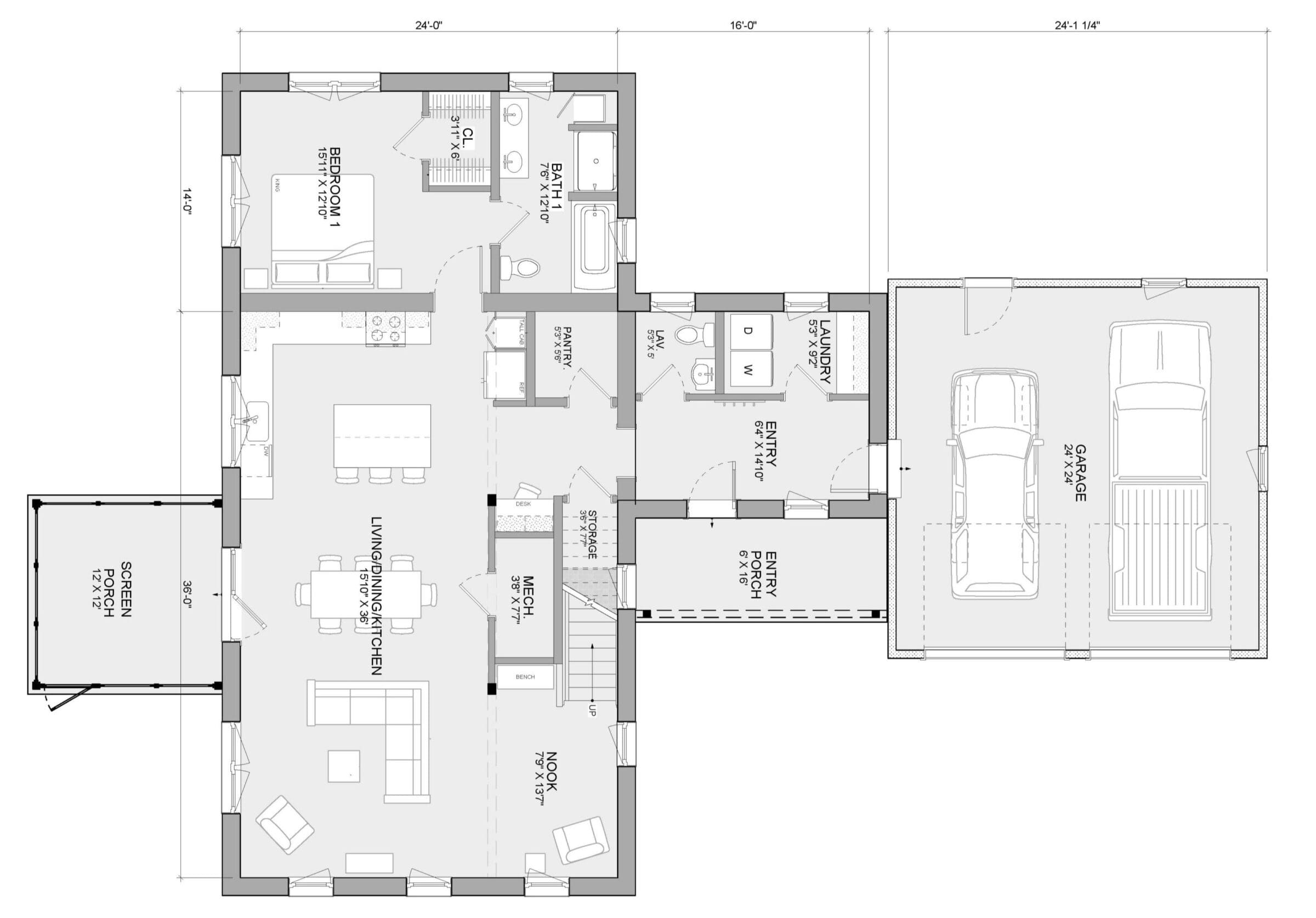
Square Footage
2607 Sq. Ft.
Number of Bedrooms
4 Bedrooms
Number of Bathrooms
3 Bathrooms
Finished Cost Range
$997,000 — $1,258,000
(Includes the Shell Price Estimate of $319,000)
The Värm Eda: Flexible Design with Room to Spare
This gable-presenting Värm works well for large families or those who want extra space. Not only is there a sizeable addition to the core design, but there is also a garage, a connector, two porches, and a covered porch. The laundry area within the entry connector can double as a mud room for easy storage of shoes and coats. Adjacent to the open kitchen, dining, and living area with 9’ ceilings is access to a three-season screened porch for a comfortable space to gather with friends and family. The first-floor primary suite has a double vanity, shower, and soaking tub with added privacy from the secondary bedrooms upstairs. At the top of the stairs is a spacious shared bathroom across the hall from a versatile sitting area or play nook.
Unique Benefits
- Mud Room
- Two Porches
- First Floor Primary Suite
- Extra Addition and Connector
- Upstairs Sitting Area
- Visible Interior Timbers

Explore the Layout
Get a closer look at how Värm Eda's spaces connect and flow. From the open concept living area to private retreats, this floor plan is designed to fit your life.

“We’ve been through many building projects and this was by far the smoothest. We ended up with a great, energy efficient home that was on time and on budget.”
-Cindy, Unity Zum Homeowner









